CANTÙ – Siglato questa mattina, nell'auditorium del Liceo Artistico e delle Scienze Umane Fausto Melotti, l'Accordo di Programma, dal valore di 3 milioni di euro, tra Provincia di Como, Comune di Cantù e Liceo Melotti per la riqualificazione e l'ampliamento dell'edificio scolastico risalente al 1958.
Un investimento importante, pari a 4.339.216,00 euro, reso possibile grazie al finanziamento della Provincia di Como, a cui è da aggiungersi il contributo di Fondazione Cariplo e Regione Lombardia ottenuto nell'ambito del Bando Emblematici Maggiori.
Il Comune di Cantù, che ha già stanziato e parzialmente affidato le spese tecniche progettuali per 60.000 euro, garantirà la regia dei lavori che prenderanno il via a giugno 2026, per concludersi entro la fine del 2027.
"Investire nella scuola significa puntare sul futuro della nostra comunità. Con questo progetto offriamo agli studenti del Liceo Melotti un ambiente di apprendimento moderno, sicuro e in linea con le loro ambizioni. Grazie ai fondi messi a disposizione, realizzeremo nuove aule e una palestra all'avanguardia, rispondendo alle reali esigenze della scuola e del territorio. La Provincia di Como ha sempre fatto dell'istruzione una priorità, e questo accordo ne è la prova concreta. L'intervento migliorerà la didattica e la vita scolastica, rafforzando il legame tra formazione e mondo del lavoro e creando nuove opportunità per i giovani. Un grazie sincero al Comune di Cantù, a Fondazione Cariplo e a Regione Lombardia per la collaborazione e la visione condivisa. Insieme stiamo creando una scuola che dimostra come il nostro territorio creda davvero nei suoi giovani e nelle loro potenzialità", ha dichiarato il presidente della Provincia di Como, Fiorenzo Bongiasca.
"L'accordo siglato oggi - le parole del sindaco Alice Galbiati - non è solo un atto amministrativo, ma il punto di partenza di un progetto che darà nuova linfa a uno degli istituti più prestigiosi del territorio. Con questo intervento non solo rispondiamo alle esigenze di studenti e insegnanti, ma riaffermiamo l'identità della nostra città come punto di riferimento del saper fare, della creatività e dell'innovazione. Un'iniziativa che conferma, inoltre, l'impegno delle istituzioni nel garantire a Cantù nuove opportunità di crescita, cultura e formazione. Cantù sta investendo sul proprio futuro, e lo fa attraverso progetti che rivoluzioneranno il tessuto cittadino: dal MoMe all'Arena, la nostra è una comunità che guarda avanti, senza dimenticare le proprie radici. L'ampliamento del nostro Liceo Artistico non è solo un'opera di edilizia scolastica, ma un progetto destinato a creare valore per tutto il territorio, rafforzando il legame tra scuola e mondo produttivo. Ringrazio il Presidente della Provincia di Como, Fiorenzo Bongiasca, per l'importante contributo economico e il supporto che non ha mai fatto mancare al progetto, e la dirigente scolastica Anna Proserpio, per la grande competenza e attenzione sempre dimostrata. Un ringraziamento anche a Fondazione Cariplo e Regione Lombardia per aver creduto nella nostra visione. Oggi Cantù si conferma una città capace di attrarre investimenti, valorizzare le proprie eccellenze e progettare il futuro con coraggio e determinazione".
"Quello per cui ci troviamo qui oggi rappresenta una svolta epocale per il Liceo Melotti, un sogno che ha trovato nell'appoggio dell'amministrazione comunale di Cantù e dell'amministrazione provinciale di Como una condivisione di intenti di valorizzazione di una ricca realtà formativa nel senso più ampio del termine. Ringrazio il sindaco di Cantù, Alice Galbiati, per avere, insieme alla sua giunta, coinvolto attivamente il Melotti fin da subito nella costruzione di progetto di Museo Diffuso in quanto realtà rappresentativa di una tradizione e detentrice di molti manufatti prodotti dagli allievi a partire dalla fine dell'800, allievi che sono poi diventati professionisti e artigiani operanti sul territorio. Ringrazio il presidente della Provincia di Como, Fiorenzo Bongiasca, per aver saputo ascoltare le esigenze della scuola e aver mostrato una grande attenzione e sensibilità ai temi della formazione e della valorizzazione del patrimonio storico mettendo a disposizione un importante investimento.
Il nuovo Museo non sarà realizzato solo per conservare la storia, ma sarà una vera occasione per lavorare in stretta sinergia con la scuola, nell'ottica di unire tradizione e innovazione.
E ancora, un ringraziamento ai tanti amici del Melotti: agli studenti, ai docenti e al personale, alle imprese, agli enti, alle realtà educative e associative, che hanno sempre sostenuto il Liceo e che hanno, in qualche modo, contribuito a rendere l'esigenza di poter finalmente dotare il Museo di un ambiente idoneo e fruibile, un'esigenza diffusa", il commento della dirigente scolastica, Anna Proserpio.
Nata nel 1882 come Scuola d'Arte e Mestieri per formare generazioni di artigiani e professionisti nel settore del mobile e del merletto, la scuola è stata il primo Liceo Artistico statale della provincia di Como ed oggi accoglie 783 studenti nella sola sede di Cantù e 109 docenti, rendendo sempre più evidente la necessità di spazi adeguati alla didattica e alla pratica artistica. Le nuove aree saranno progettate per garantire coerenza architettonica con l'edificio esistente, puntando su materiali innovativi, sostenibilità ambientale e design contemporaneo.
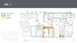
Il progetto prevede la demolizione e ricostruzione della palestra esistente, con la realizzazione di un nuovo volume su due piani che ospiterà una moderna palestra di 600 metri quadrati, suddivisibile in tre settori per diverse attività e utilizzabile anche dalle associazioni locali al di fuori dell'orario scolastico. Un'idea innovativa che ne prevede la collocazione al piano rialzato, in un involucro vetrato, per creare un dialogo visivo e funzionale con il contesto urbano. Il Comune di Cantù garantirà spazi alternativi per le attività sportive del Liceo, assicurando la continuità didattica, senza alcun disagio per studenti e docenti.
Saranno, inoltre, realizzati due laboratori e un'aula multimediale, progettati secondo i più avanzati criteri di flessibilità e innovazione, con spazi pensati per stimolare la creatività e l'apprendimento. L'ampliamento del Liceo permetterà, inoltre, di riorganizzare gli spazi esterni, dando vita ad una nuova piazzetta.
Attenzione particolare sarà riservata alla valorizzazione delle opere oggi conservate all'interno del Museo Storico Scuola d'Arte, posto al piano seminterrato dell'edificio scolastico, che troverà nuova collocazione nell'ala riqualificata, con ingresso indipendente affacciato sulla piazza, per un'esperienza accessibile a un pubblico sempre più ampio.







